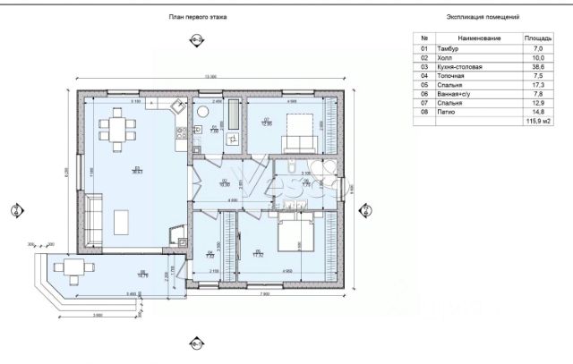
Арт. 111037525 Представляю вашему вниманию кирпичный дом площадью 788 кв. м с отдельностоящей баней, расположенный в городе Краснознаменске в 27 км от МКАД по Минскому шоссе. Дом кирпичный, построен в 2010 году. Произведена внутренняя отделка премиальными материалами (дерево, кованное железо, керамическая плитка). Установлены деревянные стеклопакеты. В гостиной установлен дровяной камин. На участке есть баня с комнатой отдыха. В доме достаточно комнат для большой семьи, в каждой есть индивидуальный санузел. Участок ровный, площадью 6 соток, дополнительные 5 соток в аренде. Выполнены работы по благоустройству (вымощены дорожки, уложен газон, есть дренаж по периметру дома). На участке есть баня с комнатой отдыха. Планировка: Цокольный этаж подсобные помещения, котельная. Первый этаж прихожая, кухня-гостиная, спальня, кабинет, гостевой санузел, спальня с индивидуальным санузлом. Второй этаж мастер-спальня, три спальни с индивидуальными санузлами. Третий этаж бильярдная, зона отдыха. Краснознаменск — город в Московской области, расположенный в 27 км к западу от МКАД, на федеральной трассе М1 "Беларусь". Это закрытое административно-территориальное образование (ЗАТО), имеющее статус городского округа. Краснознаменск обладает развитой инженерной инфраструктурой: энергоснабжением, газификацией, водоснабжением, транспортной доступностью. В городе зарегистрировано около 700 предприятий и учреждений, включая научно-исследовательские институты, филиалы конструкторских бюро и высших учебных заведений. Ключевые предприятия: "Главный центр испытаний и управления космическими средствами" им. Г. С. Титова; Краснознаменский завод полупроводниковых приборов "Арсенал" — производство электронных компонентов; Ликёроводочный завод "Традиции качества" компании "Синергия"; Компания "Розан Файнэнс" — выпуск пластиковых карт. На базе Центра профессионального образования (открыт в 2003 году) работают филиалы вузов, включая Российскую международную академию туризма и Московскую финансовую-промышленную академию. Культура и достопримечательности Несмотря на статус ЗАТО, в городе развита культурная и образовательная инфраструктура: Музей космических войск (открыт в 1985 году); Музей Г. К. Жукова (2002 год); Храм Покрова Пресвятой Богородицы — современный православный храм с золотыми куполами и росписями; Никольская церковь в селе Сидоровское (XVII век) — одна из старейших построек региона; Парк "Берёзовая роща" — зона отдыха для прогулок и пикников. Также действуют: 4 общеобразовательные школы; Краснознаменский городской колледж; Детская юношеская спортивная школа; Детская школа искусств; 9 детских садов; Центр развития творчества детей и юношества; Спорткомплекс "Заря" с подогреваемым полем; Молодёжный центр досуга; Дом офицеров; Центральная библиотека и муниципальное телевидение "ТВР+". Время в пути на личном автомобиле до МКАД составляет всего 20 минут по платной трассе М-1, что обеспечивает беспрепятственный доступ в город. На общественном транспорте также можно свободно доехать, время в пути 30 минут (ст. Голицыно ст. МЦД D1 Сетунь). В 20 км от города Краснознаменск расположен аэропорт Внуково. Загородная недвижимость в Краснознаменске.





















































































